最新资讯
联系方式

汽车车桥总成自动化装配线技术方案

发布时间:2016-12-27 浏览次数:970

李忠文
(龙岩盛丰机械制造有限公司,福建龙岩 364000)
  摘 要:分析、介绍了汽车车桥总成自动化装配技术的应用。阐述了汽车车桥总成自动化装配线的组成及功能,重点阐述了车桥总成关键工序自动化装配设备的应用对装配质量、生产效率的影响及在线检测设备在车桥总成装配过程中的应用。
  关键词:车桥;主减速器;自动化;装配;在线检测
  随着汽车市场的日趋成熟和增长,汽车产业结构进一步优化,产业进一步升级,对汽车零部件的产品性能、产品精度和产品质量的要求进一步提高。对于车桥总成的装配来说,原有的手动或简易的工艺装备及检测手段已经不能满足要求。国内几家车桥企业均通过技术改造,改进车桥部件及总成的装备工艺,改善装配车间物流和工作环境,减少人为干涉现象,提高装配自动化程度,减轻操作者的劳动强度等,确保装配产品的质量由装配线上的装配设备来保证它的稳定性和一致性,以此提高生产效率和装配质量,以适应企业的发展需要、市场需要。
  1 车桥总成自动化装配线的组成及其基本功能
  一条典型的自动化装配线一般具备七方面基本功能:1)质量保证功能;2)满足通过多品种产品的柔性功能;3)对设备的监控功能;4)信息管理功能;5)安全与人机工程合理化功能;6)物流与零件供应功能;7)完成总成装配后的整机测试功能[1]
  车桥总成自动化装配线的设计也是围绕着以上七大基本功能进行的。车桥总成装配线主要有以下几部份组成:前处理部分;主减速器总成装配线部份;轮毂制动鼓合件生产线部分;车桥总成总装线部分。
  前处理部分设备主要为零部件上线前的打标、清洗设备。主要采用自动打标机和自动通过连续式清洗机,与传统的工业标记及清洗方式相比,生产效率更高,打标可控性好,清洗效果好,工人工作强度低,同时清洗过程中工作不会磕碰或划伤。
  1.1主减速器总成装配线
  主减速器是汽车驱动桥总成的关键部件,主要实现减速增扭作用和差速作用,同时改变转矩的传递方向。主减速器总成通常由主锥总成、差速器总成、减壳、轴间差速器总成及过桥箱总成等零部件组成。
  主减速器总成装配线根据其结构特点及性能要求,设计成由差速器装配环线、主锥总成装配环线、轴间差速器装配环线、过桥箱总成装配环线及主减速器总成合装线组成,如图1所示。
  装配线的输送方式以机动摩擦辊道及平板托盘方式进行,平板托盘上的定位工装根据不同型号的产品可以进行快换,满足EQ140、EQ145、EQ153、EQ460、CA457、CA485、STR、奔驰等多个品种的前、中、后桥主减速器总成及部件的装配工作。装配线的布局以合装线为中心,各支线分布于其左右两侧,全线的上下料采用KPK,工件的翻转采用专用的翻转机,有益于均衡各线的生产节拍,提高生产效率及设备的有效利用率,同时也有益于物流通畅和运输中设备和料架、料箱之间有足够的空间。
  为了彻底解决操作靠经验、主观选择垫片而发生的偏差现象,提高产品质量及装配的稳定性,在关键的工序匀采用选垫机,通过采用主动齿轮垫片测选机来保证选垫质量,确保主动锥齿轮圆锥滚子轴承的预紧力满足技术要求;采用半轴齿轮垫片测选机来保证行星齿轮与半轴齿轮的装配间隙满足技术求,以降低噪音、提高差速器总成的寿命;采用过桥箱测量选垫机来保证中桥减总轴间差速器行星齿轮与前后侧齿轮的间隙满足技术要求。总成合装线如图2所示。
  为了保证关键、重要紧固件达到技术要求的扭矩值,提高装配质量的可靠性及生产效率,在关键拧紧工序采用自动拧紧机,如突缘螺母拧紧机、差速器螺栓拧紧机、被齿螺栓拧紧机、轴承座螺栓拧紧机器人、轴承盖螺栓拧紧机等。此类拧紧机采用计算机闭环控制系统,不但具备拧紧功能,而且还具备对紧固的拧紧力矩的检测功能,减少了人工检测环节和检测误差,提高生产效率及检测精度。
  为了保证轴承及油封的装配质量,确保轴承及油封装配平顺及到位,避免手工敲打对轴承及油封造成损伤,总成装配线各轴承及油封装配工序均采用专用的油压机压装。
  为了解决检测靠人员经验,主观判断而出现误判现象,影响产品质量,在主减速器总成装配线上增加了一系列的在线检测设备(见图2),如:主从齿拍照检测系统、突缘跳动检测机、齿侧间隙检测机、啮合斑点检测机、印痕拍照系统及在线主减速器总成空载磨合试验机等。
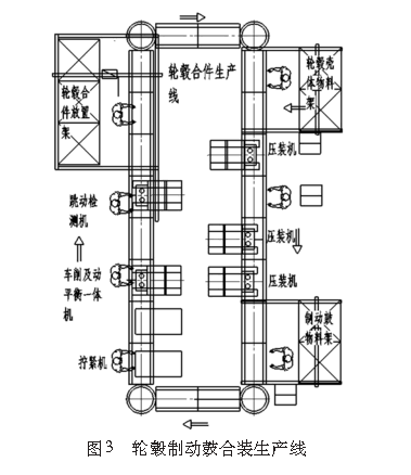
  1.2轮毂制动鼓合装生产线
  轮毂制动鼓合装工序为:压轴承外圈→压车轮螺栓→轮毂制动鼓合装→车轮螺栓拧紧→精镗制动鼓→做动平衡,如图3所示。为了提高生产效率及保证产品的质量,压轴承外圈及压车轮螺栓部分均采用专用油压机,压车轮螺栓采用多轴工装,一次将多根螺栓压到位;车轮螺栓的拧紧也采用多轴拧紧机,既保证了拧紧力矩,也提高了生产效率;精镗制动鼓及做动平衡采用了动平衡及切削一体式专机,避免二次装夹,提高生产效率,提高加工精度。装配线体采用环形设计,工件传送采用机动摩擦辊道方式,工件的上下料采用KPK,工件的翻转采用专用的翻转机,降低了工人的劳动强度,保证物流的通畅,提高生产效率。同时为了保证产品质量,增加了在线检测设备,如螺栓拧紧力矩检测机、动不平衡量检测机及刹车内径圆跳动检测机。
  1.3车桥总成总装生产线
  为了满足车桥总成装配线的基本功能,主要采用地板链式装配线,速度可调。装配线主要由装配线体、装配小车、各工序的专用设备、在线检测设备、KPK、物料架等组成,如图4所示。此装配线通过装配小车的调整,能满足中重卡的前、中、后驱动桥及非驱动桥总成的装配。各工位的零部件由叉车将物料架叉至上线区,零部件的上件由KPK调至工位上,装配过程中工件的翻转均采用自动翻转机。
  车桥总成装配线涂胶工序均采用自动涂胶机代替原有的手工或气动涂胶枪,能有效的解决由气动或机械力驱动施胶枪,从胶筒中挤出胶,靠人工进行轨迹控制,会使材料涂布的位置和数量有很大的变化,同时涂布的好坏很大程度上取决于操作者的技术,对于大批量生产的要求,手工很难保证产品质量的一致性,并且浪费大量的人力,延误生产等弊端。自动涂胶机的使用保证涂胶均匀、无污染、无伤害、节省人力,提高效率,增加经济效益。
  车桥总成的关键装配工序,采用了专用设备。如:轮毂内轴承的装配采用悬挂式压装机,改变了传统的通过加热轴承,然后通过工装敲打进行装配的方式,避免对轴承装配不到位及敲打对轴承的损伤;轴头螺母的拧紧采用了悬挂式轴头螺母拧紧机,确保轮毂轴承的预紧力满足设计要求,提高产品装配质量的稳定性;紧固件通过拧紧机进行紧固,保证了其拧紧力矩。
  同时为了保证装配过程中产品质量得到有效的监控,车桥总成装配线上采用了一系列的在线检测设备,如:前桥总成转向角及前束两大关键技术要求的测量,分别采用转向节测量仪及前束测量仪,能简单、快速、准确的测出前桥总成的转向节及前束,保证产品质量,提高生产效率;桥总成的ABS信号检测,在线设有ABS信号检测仪,装配ABS后可直接进行检测,避免后续的返工;同时桥总成装配好后还设有总成气密试验机和空载磨合试验台,能很好的检测出桥总成的密封性、桥总成正常运转过程中的噪音及桥包内油液温度的变化情况,便于及时有效的对桥总成内部结构、齿轮啮合状况、装配工艺及装配方法进行判断分析并改进,降低故障率,改善使用性能,延长产品使用寿命,并节约生产成本[2]
  2 结束语
  本文所述车桥总成自动化装配线技术方案经龙岩盛丰机械制造有限公司实际应用,能达到设计及生产实际要求,同时符合职业健康安全环境的要求。装配线大量采用保证装配质量、提高劳动生产率和降低劳动强度的先进生产工艺装备及在线检测设备,充分体现了其先进性。在同行业内有着广泛的推广价值。
  参考文献:
  [1]熊庆春,马良.产品装配技术[M].北京:机械工业出版社,1999.
  [2]南超.汽车驱动桥总成磨合机机械设计[J].汽车实用技术,2010(6):
13-15.
来源:《机电技术》2014年4期
服务热线:15618632192 / 15618783363
版权所有 © 上海堃旌轴承有限公司      ICP备:沪ICP备18003889号