最新资讯
联系方式

轴承衬套工艺改进

发布时间:2017-05-27 浏览次数:693

王会 于云龙
(中国航发南方通发公司,湖南株洲 412000)
  摘 要:滑动轴承中用减磨材料制成的衬套又叫轴承衬套,轴承衬套主要代替轴的磨损,同时也具有支撑轴运转,减振,减磨损的作用。轴承衬套大量应用于飞机的可动部分,也常用于直升飞机的旋翼主轴及飞机起落架等。本课题研究的是PWC公司的一种轴承衬套,由于该衬套要求的尺寸精度高,零件易变形,尺寸和位置度易超差。这给生产和交付带来很大的困难。通过改进数车压紧方式,改进夹具和刀具,优化程序等方面对该工艺进行优化,保证零件合格。该方法可用于其它类似零件,具有一定的推广性。
  关键词:轴承衬套;变形;改进
  1 立项背景
  PWC的某轴承衬套年产量约360件,质量问题频发。在2016年废品损失16346元。主要问题有:(1)尺寸超差:厚度尺寸3.137±0.012、外圆尺寸Φ181.19±0.03、Φ184.29±0.01、内孔尺寸Φ175.064±0.012加工中不合格。(2)刀具打刀:数铣加工斜孔Φ3.17±0.05时,钻头和铣刀断在零件内。(3)电火花工序位置度超差:电火花加工小孔Φ0.80±0.03的位置度要求Φ0.25,实际位置度高达Φ0.5。
  2 数车工序的原因分析及改进措施
  2.1数车130工序尺寸超差原因分析
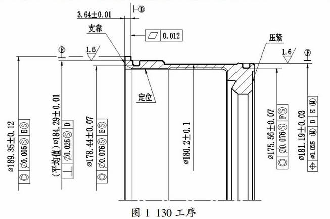
  外圆尺寸Φ181.19±0.03和Φ184.29±0.01在130工序数车加工,如图1所示。零件外圆的椭圆较大,造成局部超差。
  超差原因:加工时椭圆大,局部靠近下差,且钳工去除毛刺抛光时局部超差。压紧力过大造成零件变形,切刀加工切削力比较大,也会造成外圆变形,产生椭圆。
  2.2数车130工序改进措施
  2.2.1减少精车压紧力。粗车时切削力大,压紧力不宜太少;精车时切削力小,压紧力可适当减少。为此在精车(N4001)前松一下压板,重新找正零件,压紧力比粗车减少。
  2.2.2切刀装夹方式改进。原来切刀装夹按支靠到刀盘为准,打表检查发现刀杆跳动0.45。重新装夹切刀,跳动≤0.1,消除底刃不平对槽底的影响。
  2.2.3改进切槽程序。改进前的程序先切中间槽底,余量为0,再加工两侧,余量0.02,Z后精加工;改进后,底面和侧面余量调整为0.1,先加工左侧,Z后加工右侧与底部。
  2.2.4提高主轴转速。
  改进前转速为115r/min;
  改进后转速为250r/min。
  切削速度为原来的2.17倍,效果更好。
  2.3数车150工序尺寸超差原因分析
  厚度3.137±0.012和内孔Φ175.064±0.012在150工序数车加工。
  原因分析:改进前零件的安装采用软爪定位固定,压紧时三处受力,零件为三角变形。机床上测量尺寸合格,松开软爪后对于尺寸公差±0.012,位置度要求Φ0.012,难以保证。
  2.4数车150工序改进措施
  2.4.1将150工序数车分为两道工序加工。零件外圆没有压紧,所以圆度Z大只有0.01,Z大Z小值都满足内圆尺寸要求。为保证位置度要求,加工找正零件外圆,对称四点跳动≤0.005,外圆与各基准为130工序加工,所以能保证Φ0.012的位置度。
  新增155工序加工压紧面,保证厚度3.137±0.012。
  2.4.2设计制造简易夹具。定位尺寸以Φ184.292±0.015,端面六处压板压紧零件。
  3 数铣工序的原因分析及改进措施
  3.1数铣加工打刀原因分析
  数铣加工斜孔Φ3.17±0.05时,斜孔深度为17mm,为直径的5倍。钻头和铣刀断在零件内。
  改进前:(1)T12刀用Φ3.0的铣刀埋平面;(2)T13刀用修磨中心钻打中心孔;(3)T14刀用Φ2.8的合金钻头;(4)T15刀Φ3.1镗刀镗孔;(5)T17刀用Φ3.17铣刀埋孔。
  打刀原因:刀具不合适,钻头2.8,镗刀3.1,镗刀余量0.3,铁屑较多且不易排除。加工深度不合理,原程序中钻头、镗刀、埋钻深度为同一尺寸,加工到底部时切削力突然增大。加工参数不合理,转速1000r/min,进刀20mm/min,线速度仅为9.4mm/min。
  3.2数铣加工改进措施
  3.2.1改进数铣刀具。钻头由Φ2.8更改为Φ3.0合金钻头。镗刀余量减少0.2,遇到铁屑排不出,也不至于打刀。中心鉆刃部直径为5.0mm,需要修磨至Φ3.0才能不干涉,给生产准备带来不便。将中心钻调整为Φ2.0,不需修磨。
  3.2.2调整加工深度。将钻头钻深加大0.07,镗刀钻深加大0.02,铣刀埋孔深度不变。改进后刀具与孔底有0.05-0.07的间隙,不会产生突然增大的切削力。
  3.2.3优化加工参数。Φ3的合金铣刀转速由600r/min提高到2100r/min。进给f由5mm/min提高到15mm/min;Φ3的合金钻头1000r/min提高到2200r/min;Φ3.17的铣刀1000r/min提高到3000r/min。经过参数优化,刀具不打刀,提高了加工效率。
  4 电火花工序的原因分析及改进措施
  4.1电火花位置度超差原因分析
  电火花加工小孔Φ0.80±0.03,其位置度要求Φ0.25,位置度超差。位置度由夹具上的对刀孔保证,主要超差原因有两点。
  (1)电火花夹具上有一个对刀孔,原来的夹具设计将对刀孔位于零件上方,将对刀孔通过一个Z形的活动支架伸出,夹具制造存在偏差,活动支架与固定底座存在间隙,对刀孔已不可能放在同一位置。(2)角向销与夹具之间间隙太大,不能起到定角向的作用。插好角向销后,还可以将零件转动。电火花加工首件只能按夹具对刀孔对刀,加工出来的孔位置度不能保证。
  4.2电火花工序改进措施
  将夹具设计图的对刀孔改到零件下面,固定在夹具底座上。加工时在夹具上找正固定对刀孔中心,再装夹零件加工即可。
  角向销与零件接触部分由圆柱面设计为圆锥面,保证角向销与零件误差Z小。角向销与夹具的间隙,标注为与夹具无间隙滑和。
  5 改进效果
  改进零件质量:截止到2016年10月底,该轴承衬套累计交付167件,一次交检合格率达到97%。各项质量数据优于工艺攻关立项的目标值。
  应用到相似零件改进:我公司所加工产品与该零件相似的还有很多,该改进工艺同样可以用到相似零件上,改进零件质量,减少提交QN或报废的损失。
  参考文献
  [1]刘朝儒,等.机械制图[M].北京:高等教育出版社,2001.
  [2]刘传绍,等.机械制造工艺学[M].北京:电子工业出版社,2011.
  [3]黄靖远,等.机械设计学[M].北京:机械工业出版社,1999.
  [4]徐学林.互换性与测量技术基础[M].长沙:湖南大学出版社,2009.
来源:《科技创新与应用》2017年9期
服务热线:15618632192 / 15618783363
版权所有 © 上海堃旌轴承有限公司      ICP备:沪ICP备18003889号