最新资讯
联系方式

立磨液压管路漏油的解决方案

发布时间:2019-01-02 浏览次数:543

莫妮 鄂刚
(唐山冀东装备工程股份有限公司装备研发中心)
  0、前言
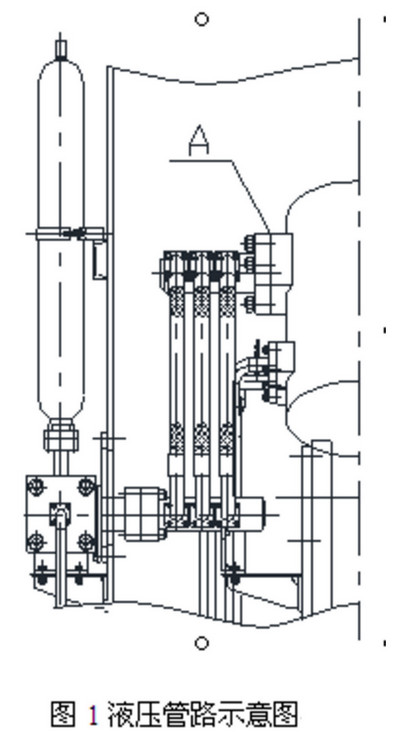
  我公司自主研发的JLMS54水泥终粉立式辊磨机其装机功率为4200kW,自2012年6月正式在冀东水泥永吉公司生产线运行以来,PC42.5水泥产量维持在200t/h以上,比表为3600±100c㎡/g。该立磨在运行初期存在一个问题,即设备运行不到一星期,液压系统中的分油管和液压缸接合面处(见图1中A处)出现漏油现象,由于每次泄露漏损耗的油品较多,停机时间较长,严重影响了立磨的正常生产运行。所以本文主要针对A处的密封失效及损坏问题,进行原因分析,提出解决的方案。
   1、原因分析
  图1所示为液压缸与蓄能器间的连接管路,为实现蓄能器对液压缸快速补压缓冲作用,A处设计较大直径管道接口,图1中A处的原密封形式详见图2.图2中的分油管一端连接高压胶管,另一端焊接法兰1,法兰1与液压缸法兰采用螺栓连接,两法兰是采用一道端面O型圈(图2中密封处1)实现密封。出现漏油初期,我们怀疑是O型圈质量较差和O型圈安装不规范引起的。在采取了更换优质的进口密封圈、改进安装工艺的措施后,立磨只正常运行几天,O型圈再次出现损坏。因此,我们还需要进一步分析问题的其他原因。
  连接液压缸与固定油管间的高压胶管在液压系统较高压力(通常12MPa左右)作用下,会产生较大的管路外张力。液压缸工作时绕下部销轴做小幅频繁摆动,在上述管路张力的牵拉作用下,分油管的法兰1与液压缸法兰结合面处的端面密封形式(图2中密封处1)很容易失效导致漏油。同时立磨振动引起冲击,导致两法兰连接螺栓出现松动,若出现松动时未能及时紧固,也增加了A处向外泄漏液压油的机会。
  2、解决方案
  在保留法兰1原端面密封(即密封处1)的基础上,增加一个开设有一道轴向密封(即密封处2)的法兰接管,详见图3。具体技术措施如下:
  1)首先扩大法兰1与液压缸法兰连接端的内孔,其直径与分油管内径相同,扩孔时需要保证扩大的内孔达到一定的圆柱度和垂直度要求。然后在法兰1空腔内焊接一个法兰接管,该法兰接管小端部分开设有与O型密封圈尺寸相匹配的轴向密封槽(原端面和轴向的两处密封槽两处尺寸及加工要求可参考《机械设计手册》在此不再详述),且小端外径与液压缸法兰内径相同,保证两结合面能贴紧压实,大端外径比法兰1新扩孔的内径小1~3mm,以便装入法兰接管。法兰接管取材方便,可使用普通钢管,制作简单。
  2)要保证法兰接管的轴向密封实现良好的密封效果,除了要求法兰1扩的内孔达到一定的圆柱度和垂直度要求以外,还有就是能否有一套比较完善的安装工艺。因为需要在现场完成法兰接管与法兰1的焊接工作,导致法兰接管和液压缸法兰的同轴度比较难保证,所以我们设计了专用的焊接定位工具来完成此项安装工作。该定位工具根据六点定位原理限制五个自由度,只有沿轴线方向的转动自由度没有限制。该定位工具可用普通钢板制作而成,其中心处开设有类似三角形花键键槽形状的通孔,边缘处开设有四个圆孔,其形状、位置尺寸与法兰1上紧固用的四个圆孔完全相同,如图5所示。实施焊接前先将法兰接管压入法兰1内腔到指定位置后再将定位工具穿过法兰接管小端部分,调整好位置后用法兰1上原先配有的螺栓将定位工具与法兰1固定住。然后在定位工具已留好的三处空腔实施三处断续焊,这样就完成了法兰接管的安装工作。如图4所示。液压管路重新安装完毕,在立磨运行过程中要加强巡检力度,定期检查,防止螺栓松动。
   3、使用效果
  改进后的液压管路,经过近1个多月的跟踪观察,再未出现漏油现象,立磨运行效果良好,双密封结构有效的适应了该处复杂的工作环境。
来源:《四川水泥》
服务热线:15618632192 / 15618783363
版权所有 © 上海堃旌轴承有限公司      ICP备:沪ICP备18003889号